Office space for rent Podgorica
Description
In the very heart of Montenegro’s capital, a new space is opening that will transform the way business is done. The “Hercegovačka” Business Center is not just a modern building — it’s a place where ideas, ambition, and success come together. Every square meter is designed to work for you.
A Space that Inspires Success
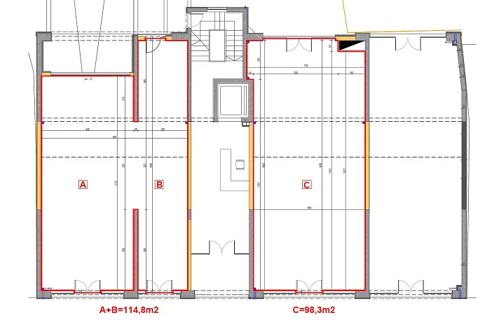
Two premium units of 115 m² and 98 m² are available on the ground floor, each with its own entrance. Built in 2025, the building brings the highest standards of contemporary commercial architecture, with flexible layouts fully adaptable to your business needs.
The Best Location for Business
Hercegovačka Street is the epicenter of Podgorica’s business life. Every day, clients, partners, and investors cross paths here. This is the ideal location for international company offices, IT firms, consulting agencies, law practices, and other ambitious ventures.
Perfect for Premium Brands
High ceilings and open layouts provide ideal conditions for boutiques, showrooms, galleries, or design studios. Thanks to its prestigious location, your brand will enjoy maximum visibility and recognition.
European-Level Services
From aesthetic medicine centers and educational projects to luxury travel agencies — this is a place for ventures that demand a high-standard clientele. The proximity to government institutions makes this address especially attractive for banks and financial consultants.
A Smart Investment
Podgorica is experiencing dynamic economic growth, with demand for quality commercial space far exceeding supply. Leasing in the “Hercegovačka” Business Center is both a practical solution and a strategic investment in the future.
Synergy of Business and Living
The mix of commercial and residential spaces within one building creates a unique community where life and business flow together. This guarantees a steady stream of visitors and clients throughout the day.
State-of-the-art infrastructure provides high-speed internet, energy-efficient solutions, and flexible technical support — everything needed for IT companies, medical centers, or creative studios.
Flexible Terms
We offer tailor-made solutions for interior finishing and layout. Long-term contracts ensure planning stability, while comprehensive legal support guarantees secure transactions.
Similar offers

Modern office space in TQ Plaza Budva with sea view
€ 315000
Budva

Commercial Property by the Sea in a New Residential Complex
€ 1550000
Becici

Commercial space with a terrace in Budva
€ 170000
Budva

Office and retail center in the final stage on a 652 m² land plot in the center of Podgorica










